Používame cookies

Súbory cookie a ďalšie technológie sledovania používame na zlepšenie vášho zážitku z prehliadania našich webových stránok, na to, aby sme vám zobrazovali prispôsobený obsah a cielené reklamy, na analýzu návštevnosti našich webových stránok a na pochopenie toho, odkiaľ naši návštevníci prichádzajú. Viac info

EXKLUZÍVNE 1i byt s terasou, Fabiniho ul., Spišská Nová Ves

Interné ID: MM271
Obec: Spišská Nová Ves
Okres: Spišská Nová Ves
Kraj: Košický kraj
Druh: Byty
Typ: Predaj
Typ bytu: 1-izbový byt
69 900 €
Exkluzívna ponuka

Popis nehnuteľnosti

Exkluzívne ponúkame na predaj 1 izbový byt s terasou v širšom centre, Spišská Nová Ves. Nachádza sa v bytovom dome, ktorý prechádza kompletnou rekonštrukciou. K bytu je možné dokúpiť garáž (25.000,- €) alebo parkovacie miesto,

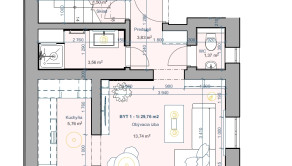
-pozostáva z: predsiene, skladu, kuchyne so vstupom na terasu, jednej samostatnej miestnosti, kúpeľne,  toalety, 
-celková úžitková plocha: 33,22m2 (vrátane pivnice 3,73m2),
-poschodie: 1/3,
-okná: plastové,
-podlahy: laminátové,
-vchodové dvere: protipožiarne,
-steny a stropy: omietky s bielou hygienickou maľbou,
-ohrev vody: elektrický bojler so zásobníkom,
-vykurovanie: elektrické podlahové,
-orientácia bytu: V-J, 

Bytový dom: pozostáva z 3 nadzemných podlaží so 4 bytovými jednotkami, spoločný balkón na poschodí,
-rekonštrukcia: prebiehajúca kompletná, 
-plánované dokončenie: apríl 2026,
-strešná krytina: plechová, izolácia striekaná,
-inžinierske siete: elektrická energia, verejný vodovod, kanalizácia,
-príslušenstvo: spoločný uzavretý dvor, garáž (možnosť dokúpenia),
-energetický certifikát: nie je.

Medzi obrázkami skutočnej nehnuteľnosti sa nachádzajú vizualizácie. Je to inšpirácia, ako môže nehnuteľnosť vyzerať po rekonštrukcii.

Cena predávanej nehnuteľnosti v stave "holobyt" je 69.900,- € a zahŕňa všetky poplatky spojené s prevodom vlastníckeho práva. Právny servis zabezpečujeme prostredníctvom advokátskej kancelárie. V prípade záujmu Vám ponúkame bezplatné finančné poradenstvo naším odborníkom spojené s financovaním nehnuteľnosti. Pre viac informácií a prípadnú obhliadku nás neváhajte kontaktovať na tel. č.: 0905 231 272.

Vlastnosti

Status:
aktívne
Vlastníctvo:
osobné
Úžitková plocha:
29.49 m2
Stav:
úplne prerobený
Počet izieb:
1
Typ výbavy:
holopriestor
Pivnica:
áno
Sklad:
áno
Rok poslednej rekonštrukcie:
2025
Pozícia:
Prízemie
Celková plocha:
33.22 m2
Pivnica plocha:
3.73 m2
Počet pivníc:
1
Vykurovanie - podlahové:
áno

Informatívna úverová kalkulačka

Pozrieť na mape

Maklér

Mgr. Martina Macejová, RSc.

Mgr. Martina Macejová, RSc.

realitný poradca

  • Slovensky
  • English
  • Deutsch
  • rusr
  • sora

Realitná maklérka s 8 ročnou praxou a titulom RSc. 
Titul RSc. je najvyšší kariérny titul v realitnej oblasti na Slovensku.

Radi Vám poradíme

Podobné nehnuteľnosti